Residence L'Aconcagua - 3 Pieces 6/7 Pers - Wifi - Aconcagua - 702Ac - Plagne Centre Mae-9204 La Plagne
Residence L\'Aconcagua - 3 Pieces 6/7 Pers - Wifi - Aconcagua - 702Ac - Plagne Centre Mae-9204
Preview only — see all hotel photos
See all 13 photos 1 /
13
9.0
1 recenzi
Best options for your travel dates
Zobrazit hotel na mapě
Residence L\'Aconcagua - 3 Pieces 6/7 Pers - Wifi - Aconcagua - 702Ac - Plagne Centre Mae-9204
Toto ubytování typu apartmán je vzdáleno 1 km od Lanovka Verdons Nord, zatímco Lanovka Quillis je vzdáleno 3 km.
Hosté apartmánu se dostanou do centra města La Plagne za 15 minut chůze. Le Vins & 1 a La Marmotte Qui Fume podávají vynikající jídlo, a lze k nim dojít během 15 minut chůze od ubytování. Hosté se mohou těšit na procházku k Aime La Plagne Ski School, což se nachází nedaleko.
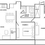
V apartmánu jsou 2 ložnic. Pro větší pohodlí jsou k dispozici 2 koupelen.
Apartmán je vybaven kompletní kuchyní. Vlakové nádraží Telebus a autobusová zastávka Club Med 2100 jsou vzdáleny 15 minut a 5 minut chůze.
Více +
Méně -
Čekejte prosím, ověřujeme pro vás volné pokoje.
Vyhledávání hotelů
Vybavení
Vybavení Pokoje
- Wi-Fi
- Zvířata nejsou povolena
Vybavení
Všeobecný:
- Zákaz kouření na místě
- Wi-Fi
- Domácí zvířata nejsou povolena
Vybavení pokoje:
- Žehlení
- Pračka
Politika
Přihlášení: od 17:00 do 20:00
Odhlášení: od 08:00 do 10:00
Mapa
Místní zajímavosti
Letiště
- Meythet Airport (113 km)
Vlaková nádraží
- Telebus (500 m)
Recenze
Napište recenzi
100% ověřené recenze
9 /10