Residence L\'Aconcagua - 3 Pieces 6/7 Pers - Wifi - Aconcagua - 702Ac - Plagne Centre Mae-9204
Preview only — see all hotel photos
See all 13 photos
Show hotel on map
Residence L\'Aconcagua - 3 Pieces 6/7 Pers - Wifi - Aconcagua - 702Ac - Plagne Centre Mae-9204
Telemetro Gondola is only 1.3 km from the 2-room Residence L'Aconcagua - 3 Pieces 6/7 Pers - Wifi - Aconcagua - 702Ac - Plagne Centre Mae-9204 La Plagne, while Grande Rochette Funicular Lift is situated nearby.
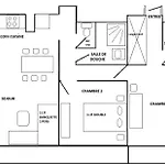
The 61 m² apartment is in the vicinity of the Le Lac Vert, which is an excellent place to improve cultural awareness. If you feel like visiting the surroundings, check out Fornelet Ski Lift that is approximately a 10-minute ride from the apartment. The Plagne Montalbert is 3.8 km from the accommodation.
At the apartment, guests will enjoy the convenience of a hairdryer in the bathroom.
An equipped kitchenette is also provided, as well as an oven and a dishwasher. Meythet airport is located 115 km away, while Club Med 2100 bus station is fairly close to Residence L'Aconcagua - 3 Pieces 6/7 Pers - Wifi - Aconcagua - 702Ac - Plagne Centre Mae-9204.
Amenities
Main Features
- Wi-Fi
- No pets allowed
Facilities
- No smoking on site
- Wi-Fi
- No pets allowed
- Ironing facilities
- Washing machine
Policy
Map
Local Attractions
Airports
- Meythet Airport (113 km)
Train stations
- Telebus (500 m)
Reviews
100% Verified Reviews